Aoi Aso Shrine / National Treasure Memorial Hall
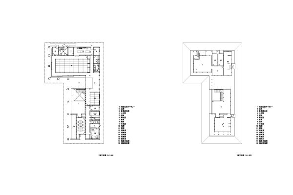
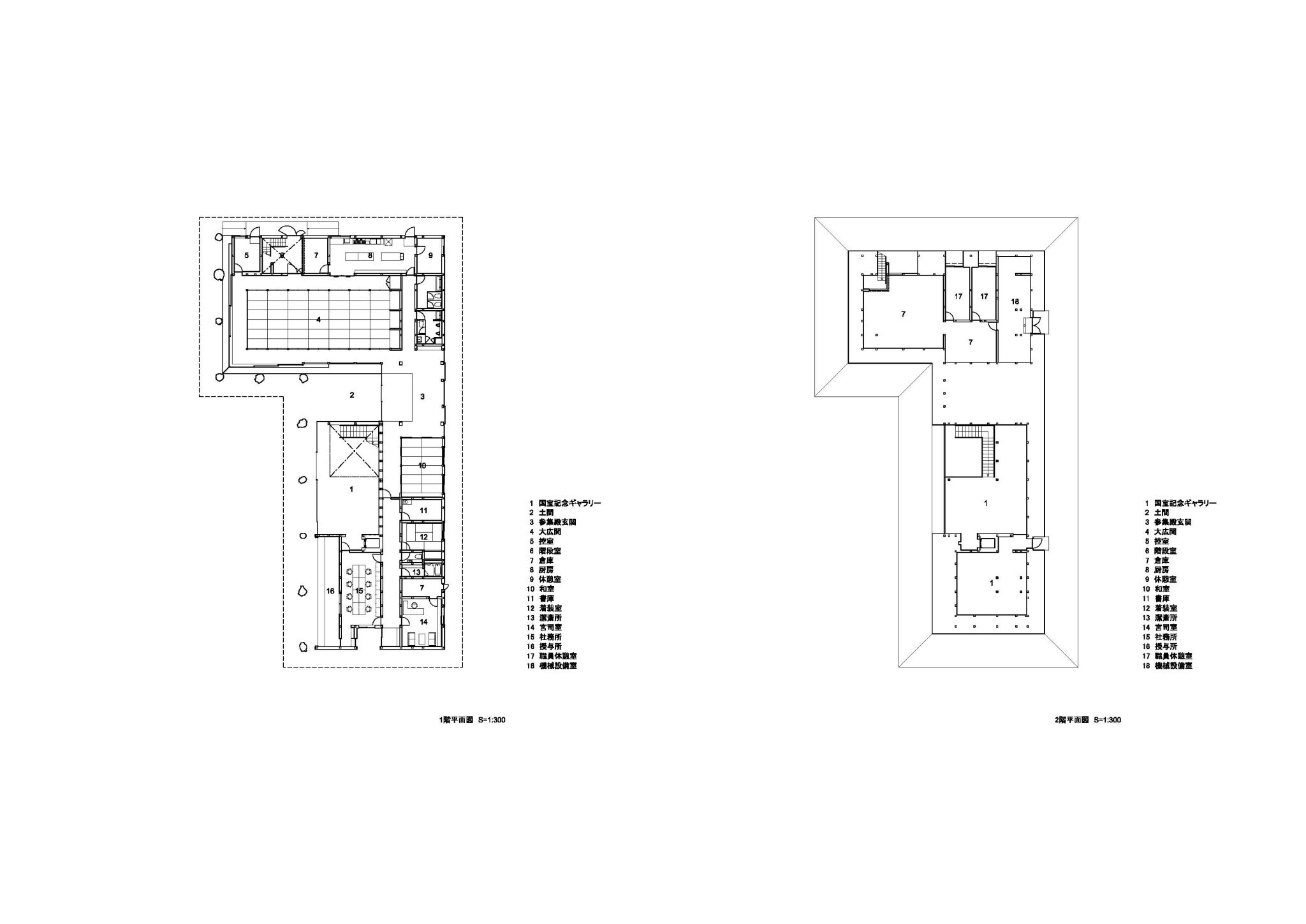
Beside the Aoi Aso Shrine with a thatched roof which is a national treasure, we built a new assembly hall that combines a shrine office, museum, and a large tatami room that is used as a place for interaction in the local community.
In order to counteract the overwhelming power of the shrine that consists of a sudden primitive, ancient pile of grass on top of a delicate woven structure, wooden louvers which have undergone flame retardant treatment were used to create the coarse rhythm of the many gaps and slight camber of the thatched roof, consisting of a challenge of contemporary vocabulary and technology. We felt that the construction method of overlapping layers on top of metal roof seams that has been repeatedly used since the Hiroshige Museum of Art had various possibilities hidden when bringing back the porous soft texture of thatched roofs in a contemporary setting.
A fallen 400-year-old Sano cedar tree from the Sano Shrine in Miyazaki Prefecture was used to make the columns that support the large roof. This large tree was about the same age as the shrine which is a national treasure.
Hitoyoshi was struck by a record-breaking torrential rain immediately before groundbreaking, and the muddy waters of the Kumagawa River washed away all of the handrails on the Misogi Bridge in front of the shrine, resulting in inundation above the floor level, and we were prepared for the possibility of having to start from scratch. However, the surprising passion of Mr. Fukukawa, the chief priest of the shrine, and the local people to facilitate recovery resulted in the building being completed nearly as planned.




















