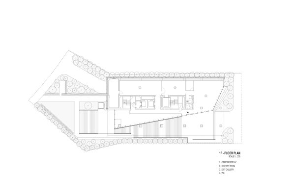
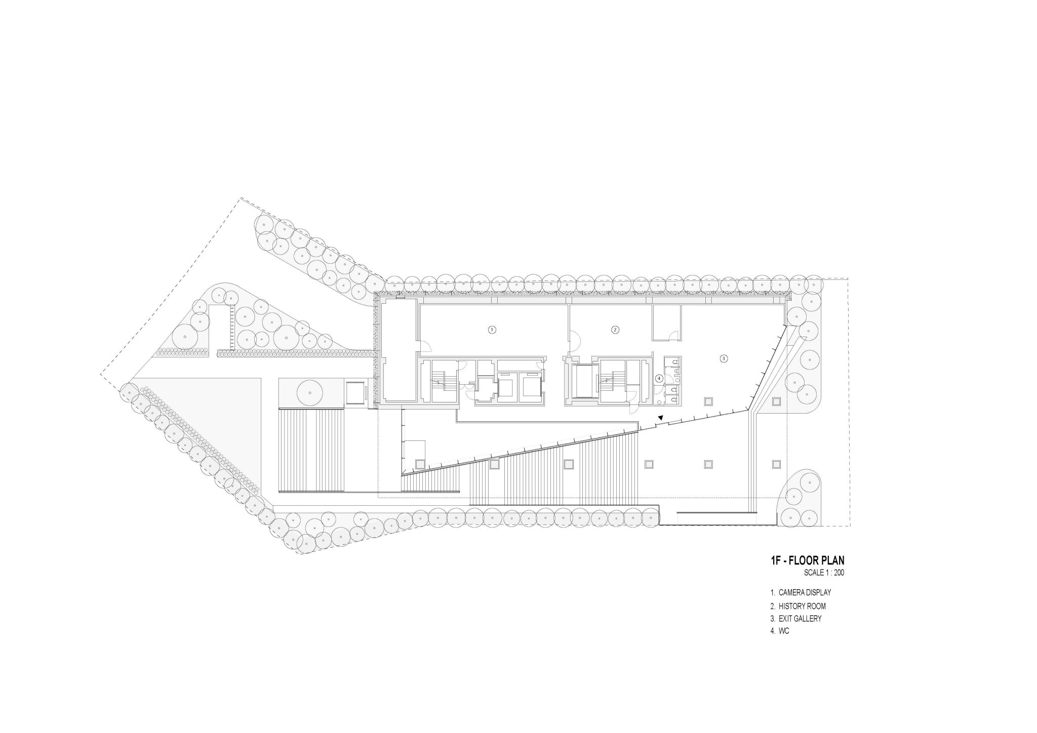
Audeum (audio museum)
The Audeum (Audio Museum), located in Seoul/Gangnam, is a museum that goes beyond the traditional concept of a museum. It is a place where you can not only see but also experience sound firsthand. Moreover, it is not just a place to listen to sound; it is an architectural instrument that returns humans to a natural state, allowing them to experience the five senses of the body.
The exterior design uses vertically overlapping aluminum louvers to create changing shadows, where light and shadow meet between the louvers, producing a beautiful effect like sunlight in a forest. The use of aluminum pipes mimics the changes in natural light, randomly arranging the pipes to harmonize natural disorder and order, emphasizing the beauty of light that changes according to weather, time, and season. Additionally, the bright aluminum pipes envelop the entire building, allowing the exterior to show new expressions according to the seasons, incorporating the random characteristics of the urban environment and nature into the architecture.
The interior of the exhibition rooms uses wood, adopting a detail we call ‘wood drape,’ which differs from typical wood finishes, emphasizing the softness and naturalness of the wood. The exterior, with its hard aluminum, transitions to the soft material of the wood inside, creating a gradual shift from the exterior to the interior. The wood finish is designed with acoustics in mind, creating a space that stimulates human senses and fosters a sense of closeness to nature.
The Audeum (Audio Museum) is a space where you can experience not only visual elements but also sound, light, wind, and fragrance, engaging all the senses. This place, where you can experience a new sensory world, goes beyond a museum, providing a special healing and sensory experience. It is destined to become a symbolic place of the new era.




















