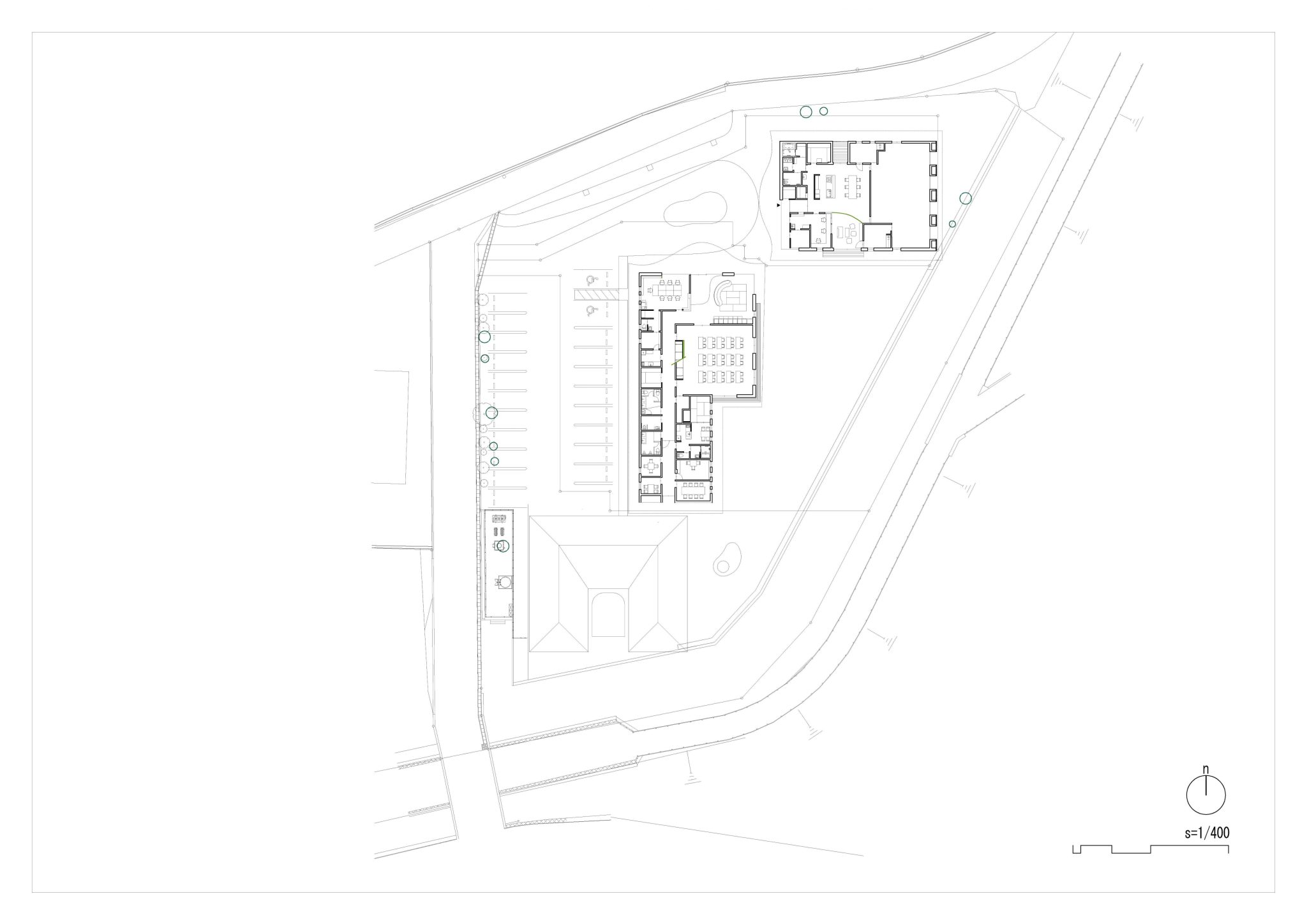
Higashi Kishu Children Center
In Kumano City, Mie Prefecture, known for its cedar and cypress trees, we designed a “wooden” children’s home that is in harmony with the magnificent nature of Kumano.
It is said that the use of wood has a tremendous impact on children’s lives and helps them grow up to be strong, bright, and gentle.
We used Kumano trees for the structure, exterior, interior, and furniture. The large overhanging eaves were designed to protect the architecture and the children from the nature of Kumano, where it rains frequently and the sun shines strongly.
The eaves, which extend up to 4 meters, curve at the top to blend in with the surrounding mountain range and the rafters create a broad, curved surface. The eaves also serve as a message of cooperation and friendship to the local community.














