Engawa – Calouste Gulbenkian Foundation Southern Apex
The Gulbenkian Museum project in Lisbon embraces the Japanese concept of Engawa, a transitional space that lies between indoors and outdoors. In traditional Japanese architecture, the Engawa acts as a threshold, allowing a seamless connection between the interior and nature. Engawa is an invitation for visitors to experience the quiet harmony between architecture and landscape, fostering interaction with the environment.
One of the primary goals of the project was to create a harmonious relationship between the museum and its surroundings. By opening new pathways and lowering the old surrounding walls around the garden, the design strengthens the connection between the garden and the city of Lisbon. This approach invites the public to move freely through the garden to the museum, establishing an ongoing dialogue between art, nature, and urban fabric.
The landscape design, led by VDLA, complements the architectural vision by transforming the museum grounds into an immersive urban forest. By densifying the vegetation and allowing varying concentrations of greenery, the visitor is invited to meander through the landscape that unfolds at each turn, revealing a series of hidden jewels: clearings and meadows, garden pockets, and reflective water elements. Beautiful and well-crafted garden that over the course of the years will be developed into a more natural and poetic environment. This rich, natural environment creating a sensory experience that deepens the connection between the built environment and nature.
The roof, adorned with white, hand-crafted Portuguese tiles, stretches across the grounds, sparkling with reflections of moving leaves, drawing visitors in and as they approach, the experience transforms into a warm, sheltered space, thanks to the ash wood beneath. The roof not only provides protection but also creating a warm, inviting atmosphere where visitors can gather and explore the outdoor spaces in comfort. These materials, rooted in both Portuguese and Japanese traditions, reflect a shared cultural respect for craftsmanship and nature.
Alongside with the addition of roof, while retouching to the existing museum, we aimed to celebrate the building’s original beauty by exposing the structure through minimal intervention while creating seamless sightlines to the gardens from all sides. We opened
up the walls of previously enclosed spaces, such as the atrium and technical areas, which serve as the new atrium, main core, and shop are now visually connected to the gardens.
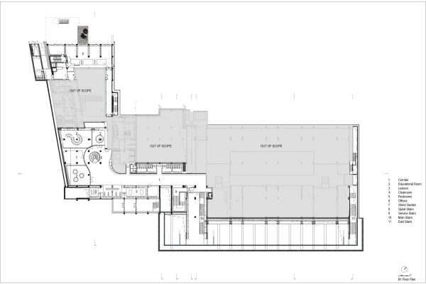
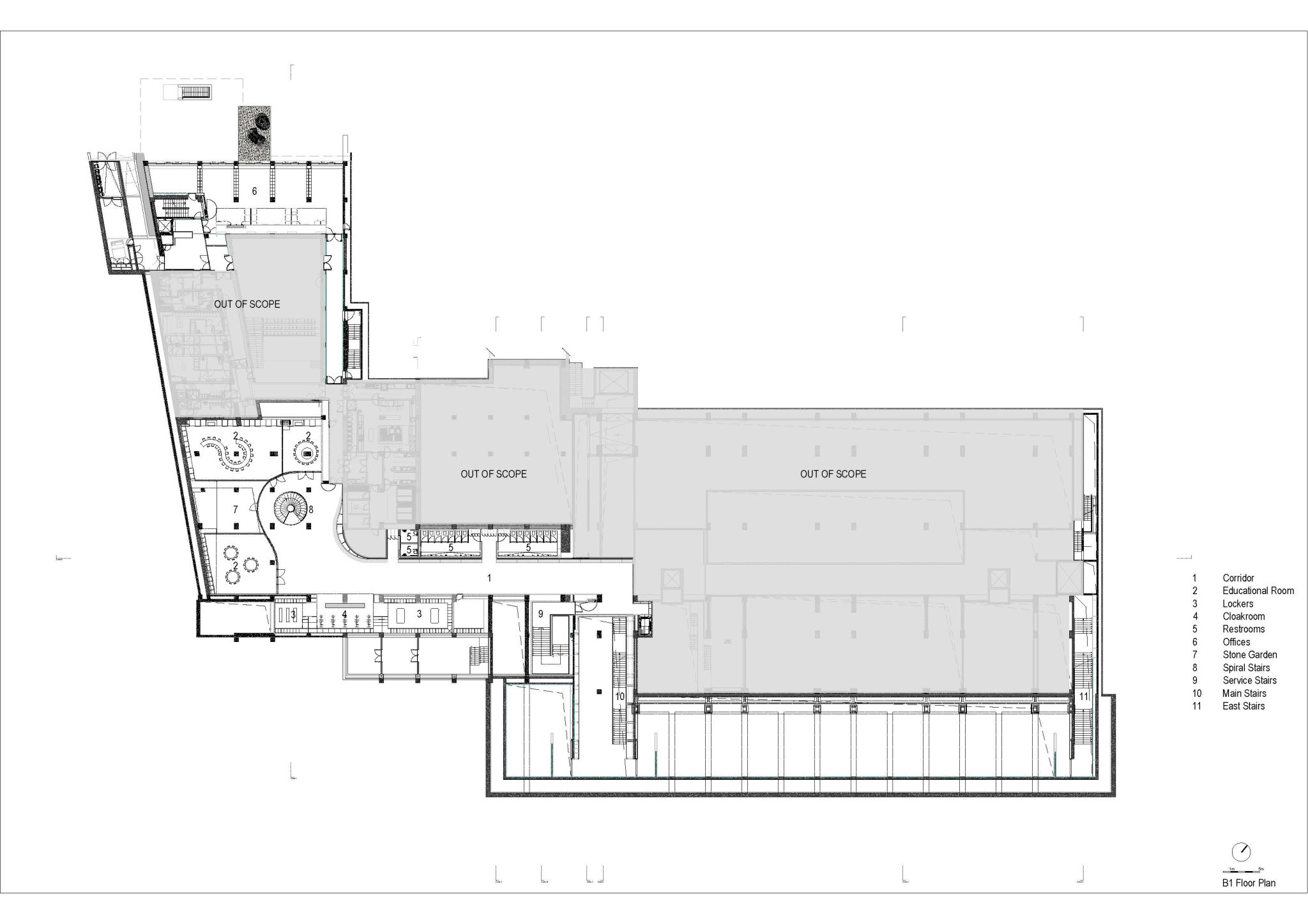
Furthermore, a new gallery was added on the B2 floor, situated directly beneath the Engawa, expanding the museum’s capacity to display more of Gulbenkian’s extensive art collection and support the new collaborations with the artists.
The Gulbenkian Museum is not just a building; it is an integrated environment where art, architecture, and landscape coexist in a harmony and it surely will become a model for such a museum of the future.
Lead Architect: Kengo Kuma & Associates
Local Architect: OODA
Technical and service areas: TNP – Teresa Nunes da Ponte Arquitectura
Landscape architect: VDLA (Vladimir Djurovic Landscape Architecture)
Consultants
Structural engineer(s): Quadrante Portugal, Buro Happold (Engawa)
Mechanical engineer(s): Natural Works
Electrical engineer: Glu Projectos
Fire and Security: ETU
Engawa Structure: Arestalfer
Engawa Tile Substructure: Jofebar
Engawa Tiles: Viuva Lamego
Carpentry: Jular
Glazing: Otiima I Much More Than A Window
Water and Sewage: Campo d’Água – Engenharia e Gestão Lda
General contractor: HCI
Management and Fiscalization: Teixeira Trigo




















