CMP Inspiration
A garden-like museum was inserted at the foot of a high-rise building in Taichung.
By creating a green museum on a site facing “Calligraphy Greenway,” the center of Taichung City’s green network, the public green network and private development are seamlessly connected through greenery.
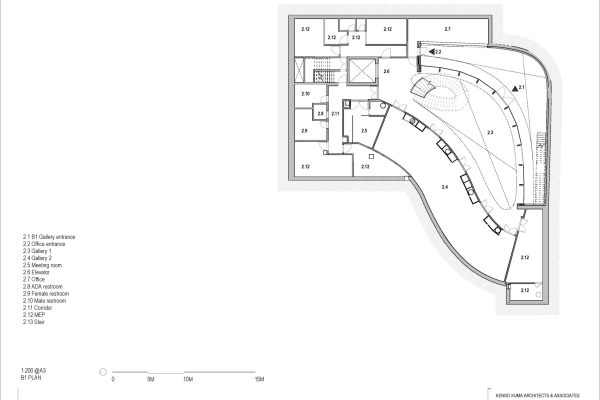
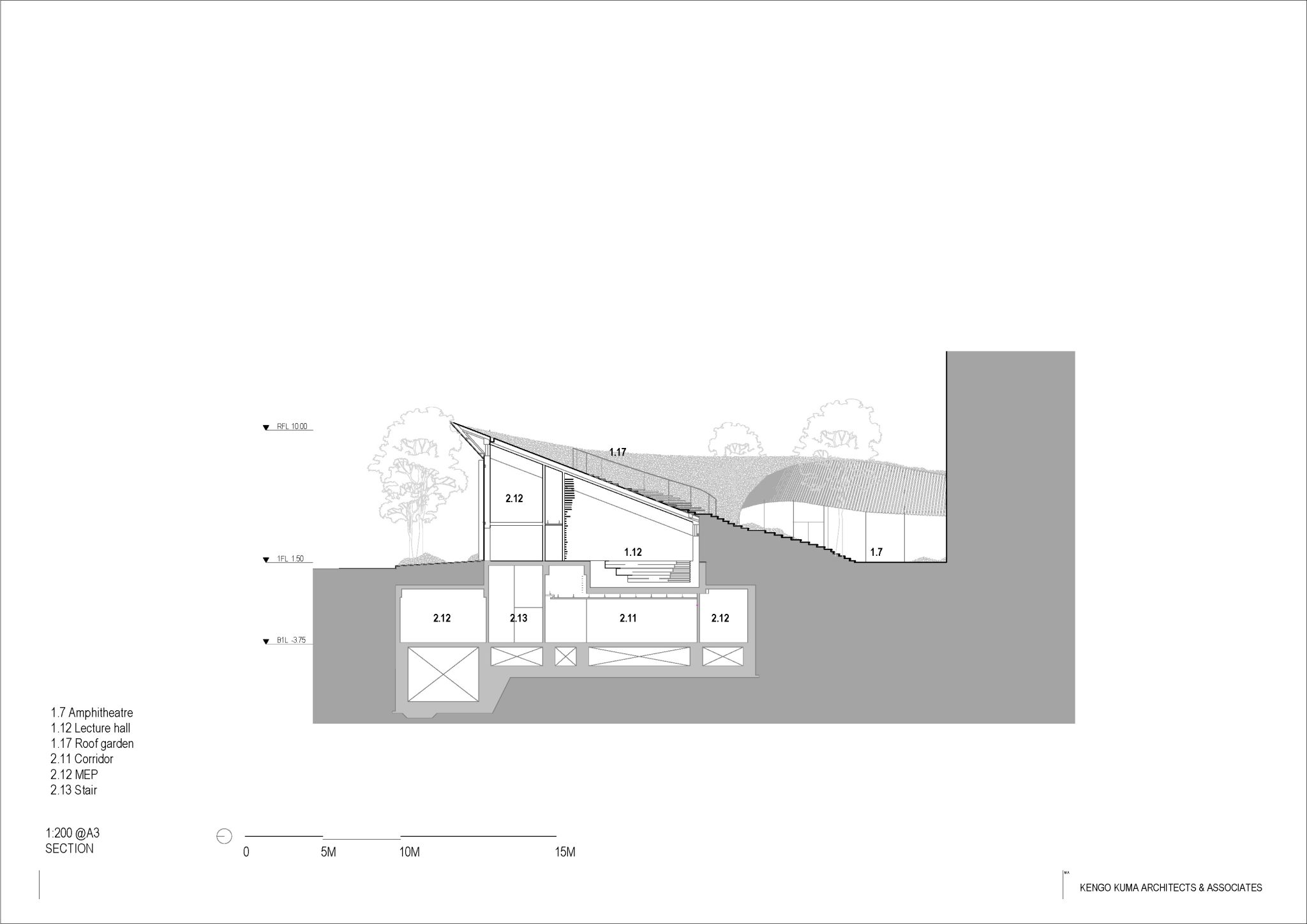
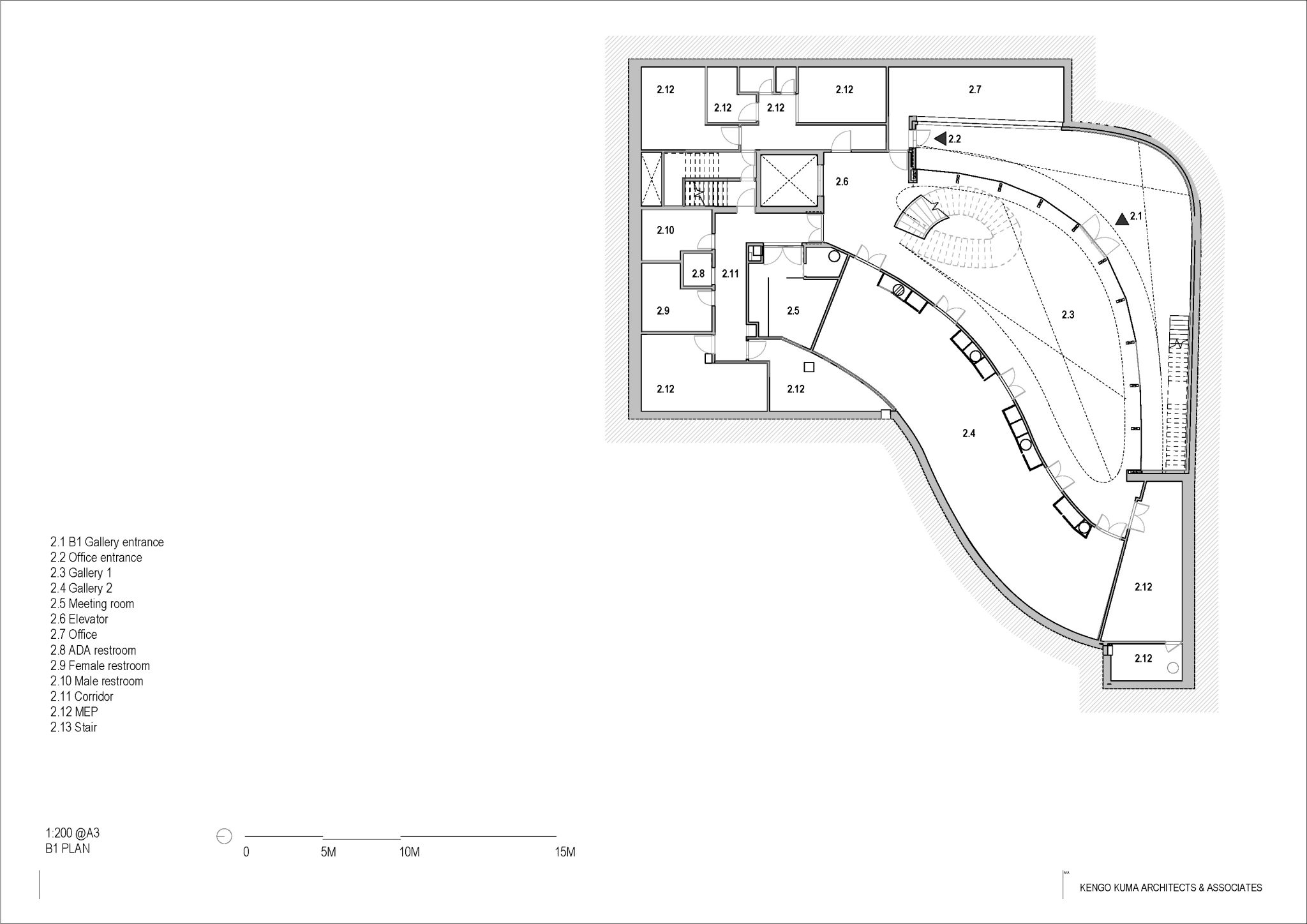
Most of the museum was buried underground to keep the eaves low and reduce the oppressive feeling of the building. Furthermore, by integrating the roof with the ground, the roof space was opened to the city as a public space for various events and concerts.
In order to cover the roof with various types of plants, we achieved a green roof with soil. Despite the use of soil, the thickness of the roof tip was eliminated, and ivy was extended to the eaves, creating an eave detail that blurs the boundary between architecture and nature. To keep the building load as low as possible, a simple structure of 12 mm thick polygonal steel base plates supported by steel post and beams was adopted to achieve a twisted roof surface.
Connecting the underground exhibition space with the ground level, we created a shadowy cave-like space with a louvered ceiling that reflects the twisted shape of the roof, pleated walls, and a spiral staircase. By creating an organic exhibition space that differs from an abstract white cube, we attempted to immerse nature into the city, both in terms of scenery and experience.
Related project: Church and Landscape, CMP Group Taichung Mixed-use Development (Liuyuan Presbyterian Church)




















