Moriyama City Hall
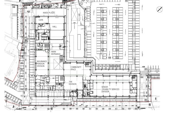
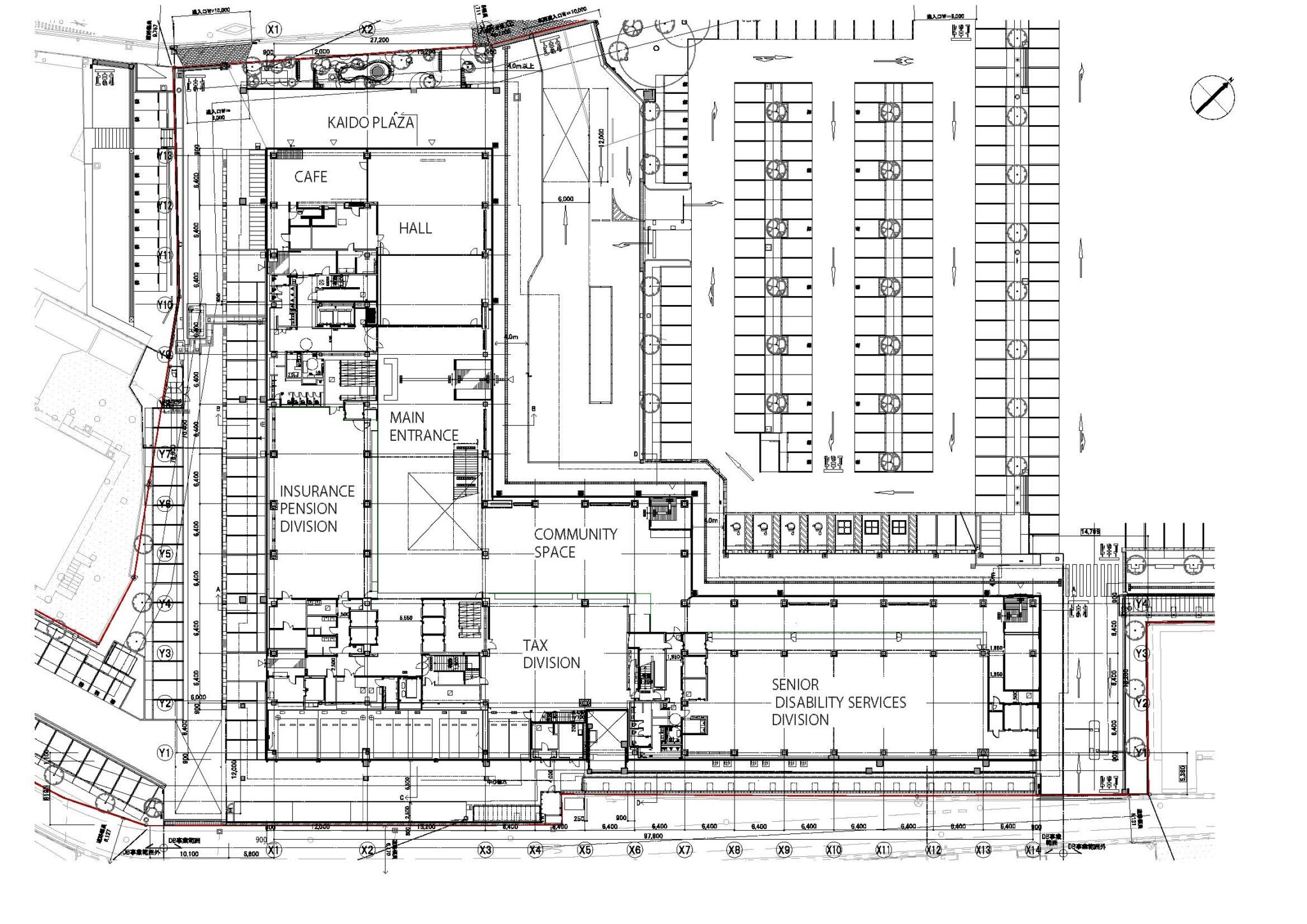
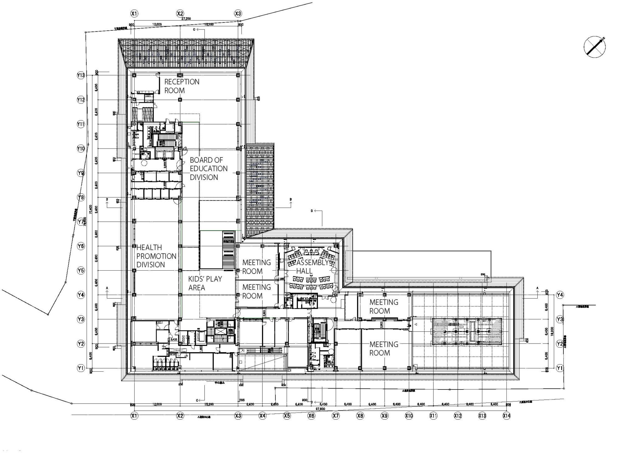
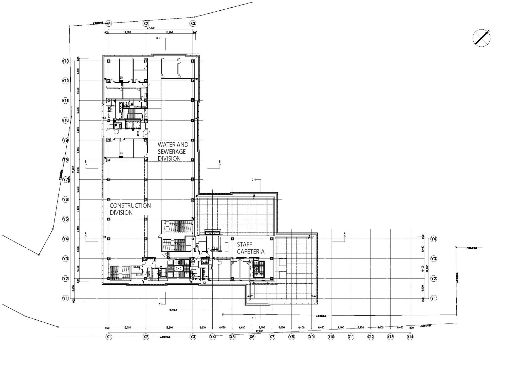
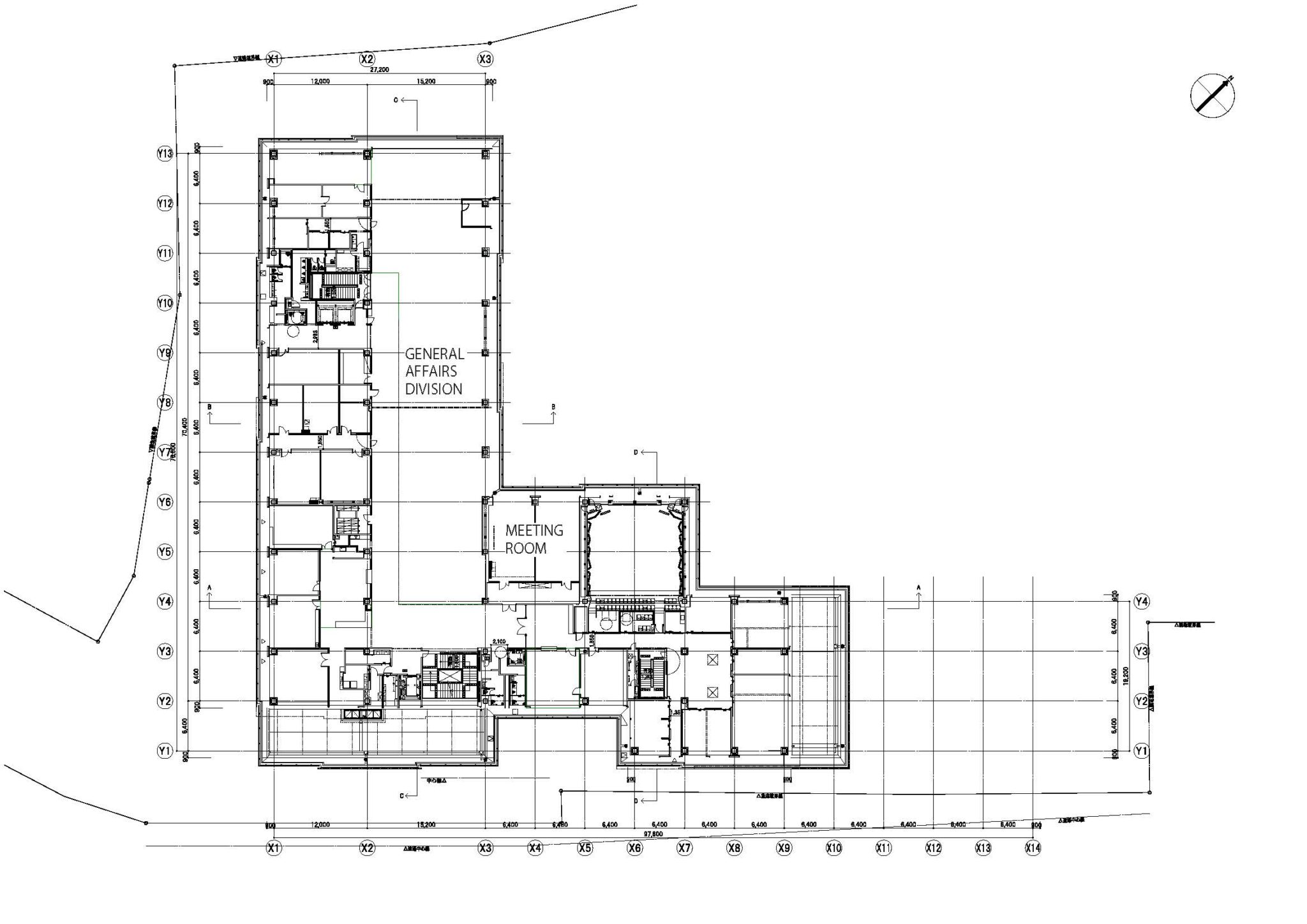
In Moriyama City, which once prospered as a post town along the Nakasendo Highway, we designed a government office building that is open and connected to the city like a former highway. The L-shaped lobby is placed in continuity with several roads leading to the government office building and is designed to avoid the existing government office building which is still in operation. Along the lobby there are large eaves, a plaza, café, a civic hall, and various reception desks to welcome citizens and provide a place for public activities. Walking around the lobby will exhibit a lively atmosphere where civic activities and administrative functions are integrated. Inside the building local timber is actively used and the eaves and balconies are wrapped with varying delicate wood louvers to create a warm and welcoming government building, fitting to Moriyama’s rich natural environment.




















