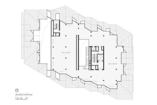
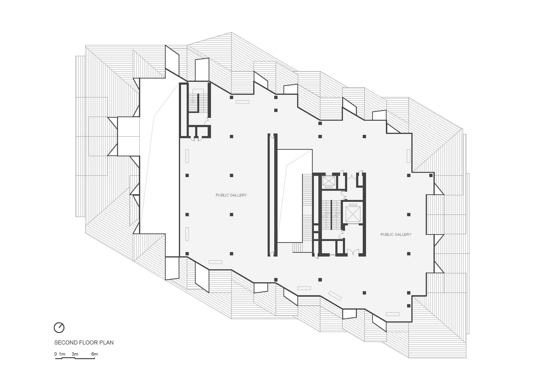
Hanling Museum of Art
This project is a museum located on the shore of Dongqian Lake, the suburb of Ningbo City on the east coast of China. Since ancient times, this region has prospered as a hub connecting Ningbo City and Xiangshan Port. After recent years of restoration, the wooden architecture along the canal is reminiscent of the bustle of the past. The museum was planned to disseminate this beautiful old village’s history, culture, and art.
We designed the museum as a “mountain-like” building on the small peninsula that juts out into Dongqian Lake. The architecture blends into the surrounding landscape, turning itself into one of Dongqian Lake’s mountains.
The museum is designed to resemble an aggregation of the village houses’ small roofs. With the humane touch and warm texture of the roof tiles, the scenery of the merged “mountain” and the village of Hanling bring the past and the present into one place.
As for the museum interior, we designed a cave-like space inside the mountain, which provides a unique experience and time contrastive to the inorganic spaces of conventional box-type museum buildings.














