Nozomigaoka Elementary School and Junior High School
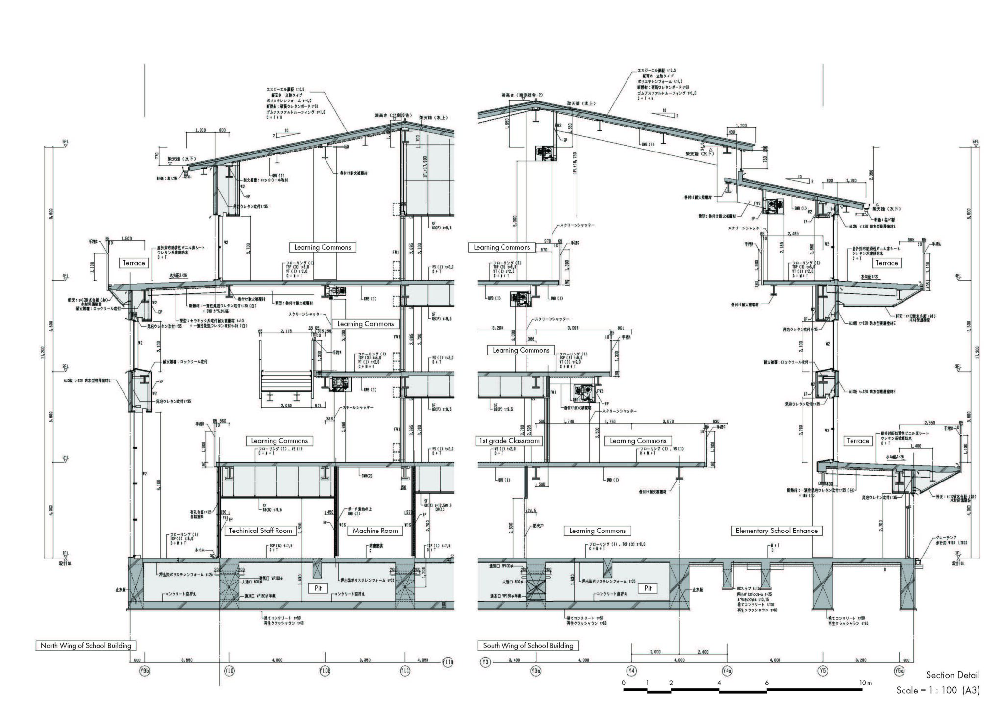
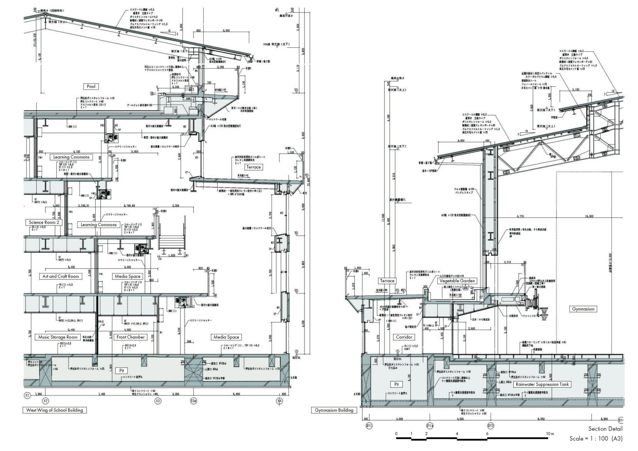
We designed a school in Neyagawa City, Osaka Prefecture, where people are connected in a warm environment. By dividing the roof of a large building into sections that match the surrounding streetscape, and including balconies of varying depths, we created a large continuous space that presents at the scale of a collection of small houses.
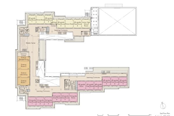
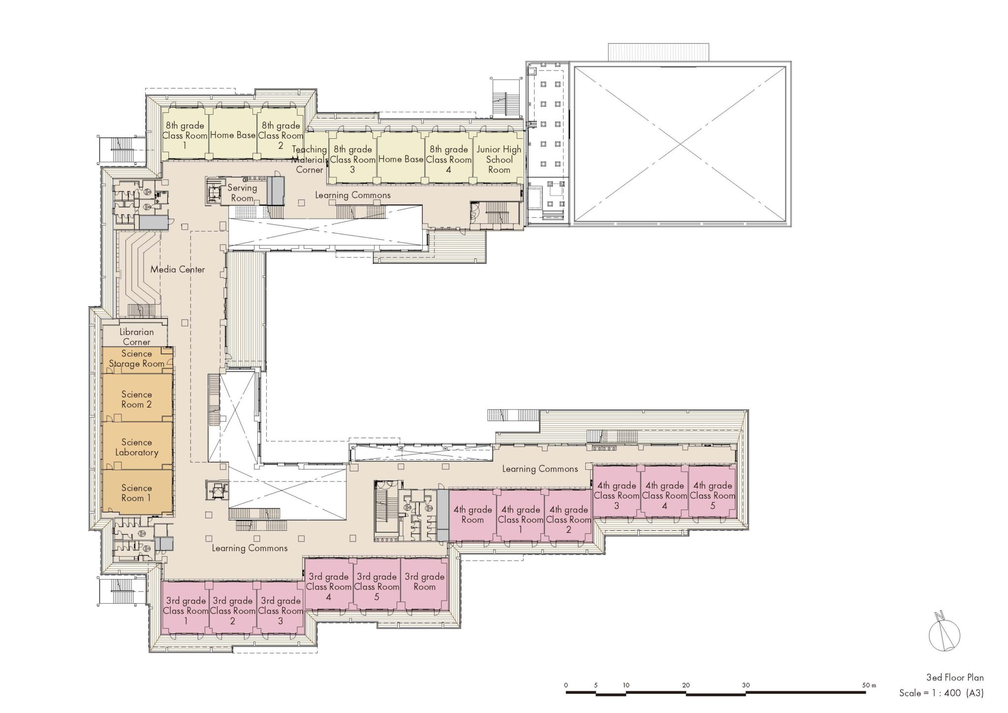
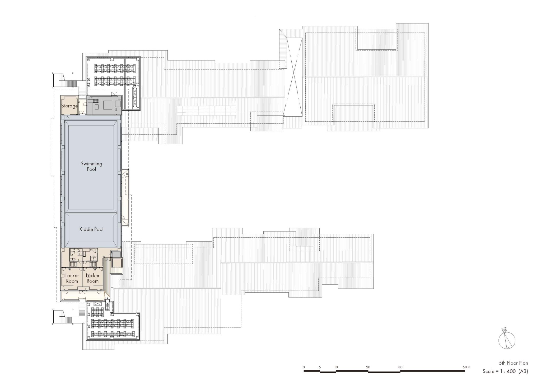
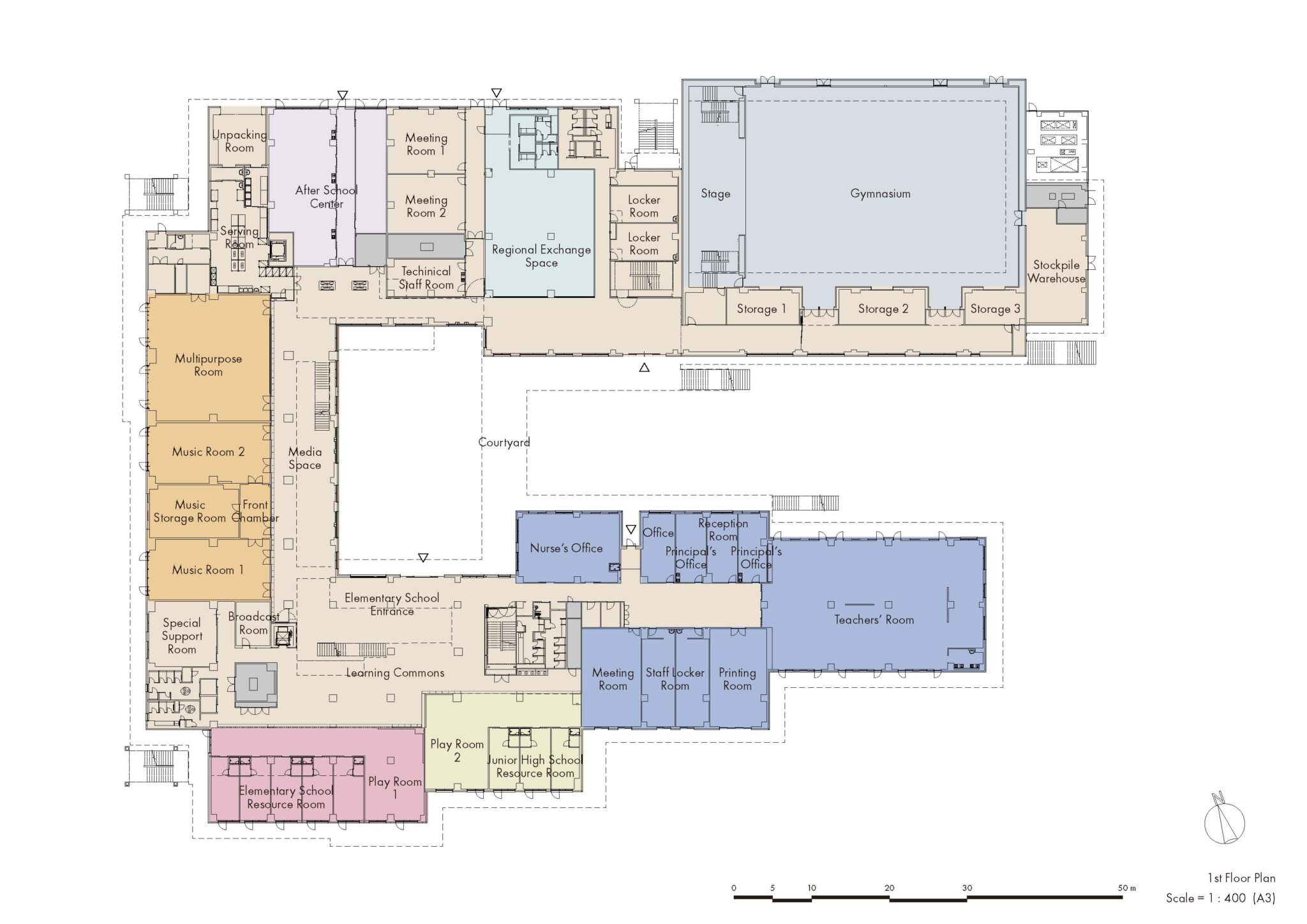
The school is a new symbol of the community. It houses two elementary schools and a junior high school. The elementary school and junior high school buildings face each other along the north-south axis. The west wing, which connects them, is a U-shaped layout for special classrooms. The building’s form creates an intimate courtyard which is open for the community to use.
Randomly placed openings in the exterior wall surrounding the courtyard create a light-filled common space for children to gather. The use of curves in the transition between furniture and flooring materials creates a cozy place to stay. The learning commons facing the atrium is made up of overlapping slabs inspired by the surrounding hilly terrain. This stepping feature creates visual connections and soft divisions that intersect to enhance the cohesion of each grade level while fostering a sense of unity that transcends grade levels.
Rather than a dedicated library space, the whole building is alive with books. Shelves are distributed throughout the building, creating a human-scale space for exploration that draws out independent curiosities as the children learn and grow.




















