Edogawa Sogo Recreation Park Service Center
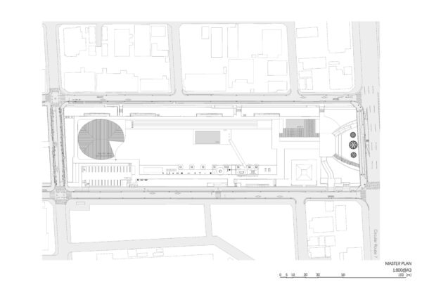
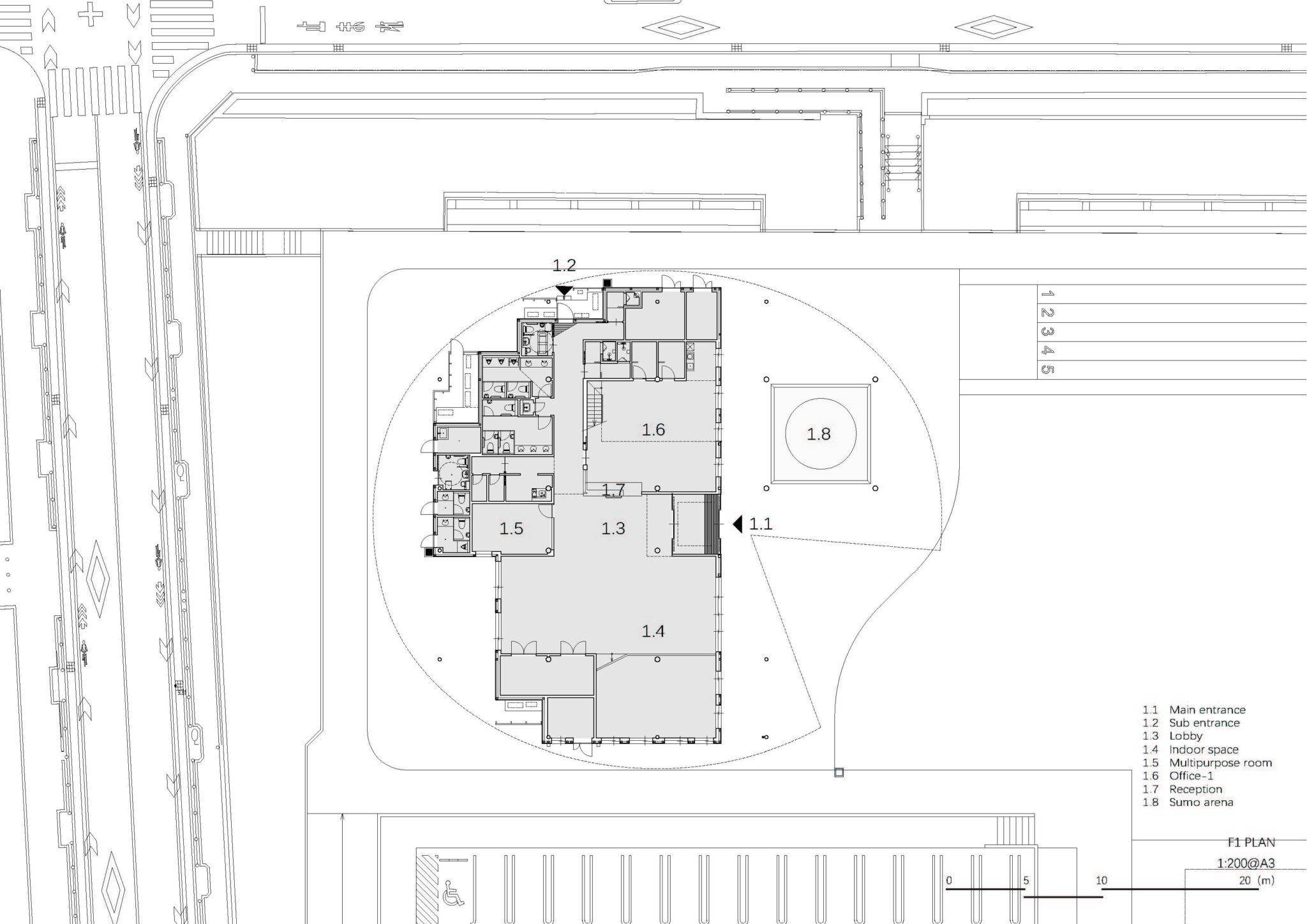
We designed an “indoor plaza” for play in sunny and in rainy weather in the Edogawa Sogo Recreation Park. This park is currently undergoing renewal through the Park-PFI/Park-Private Finance Initiative.
A large cutout in the circular hipped roof opens the architecture to the park environment, creating continuity between the interior and exterior. Half of the roof was made semi-outdoor with deep eaves, and a sumo wrestling arena was developed on part of it.
By making the outer perimeter of the simple hipped roof circular, a change in height was created at the edge of the roof, creating an architectural expression appropriate for an active place.













