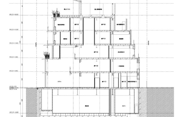
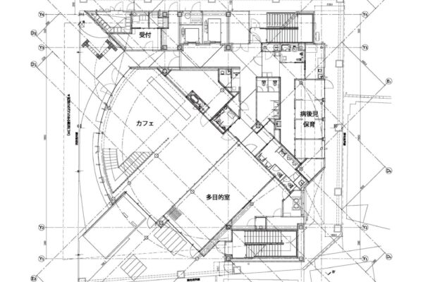
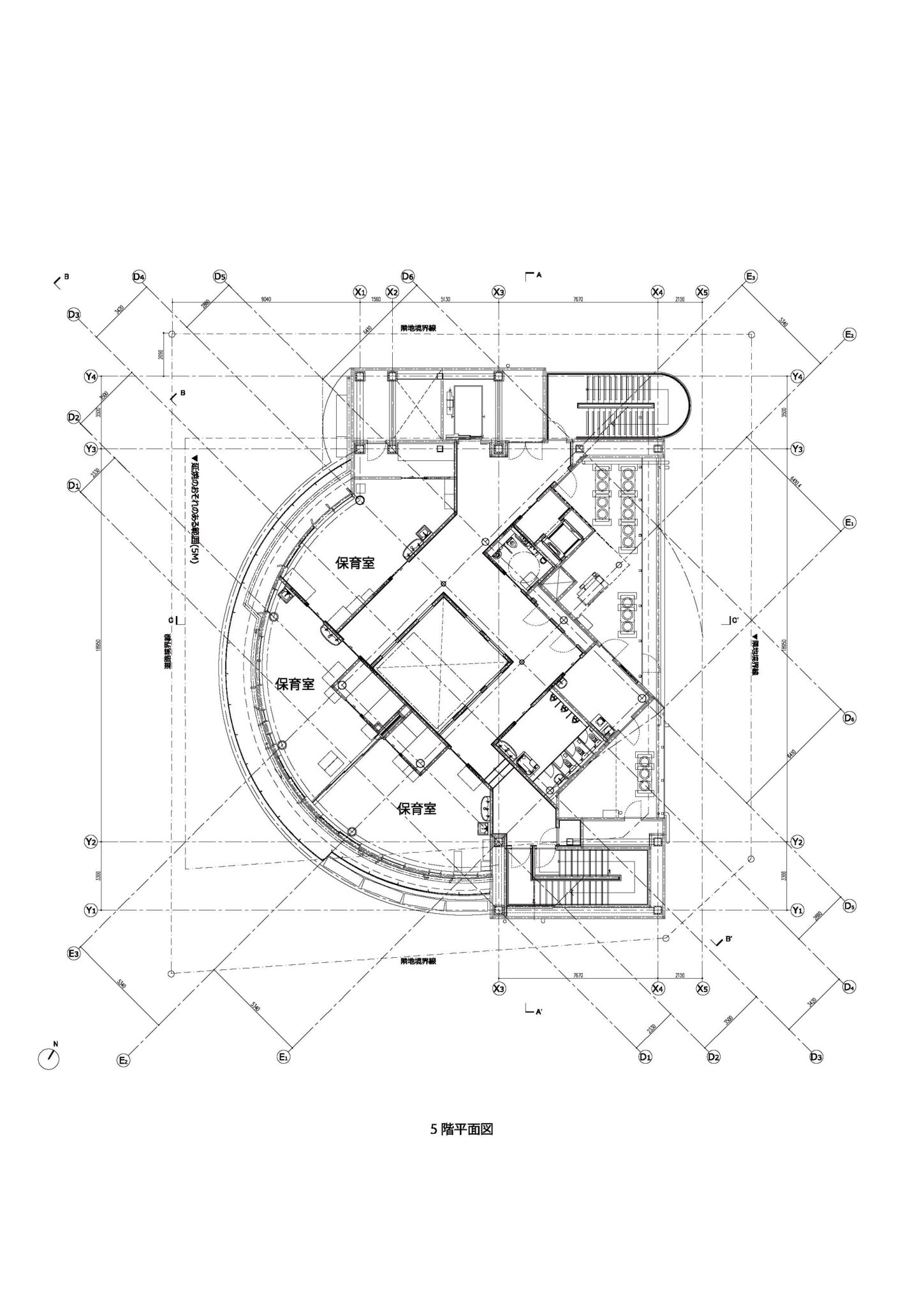
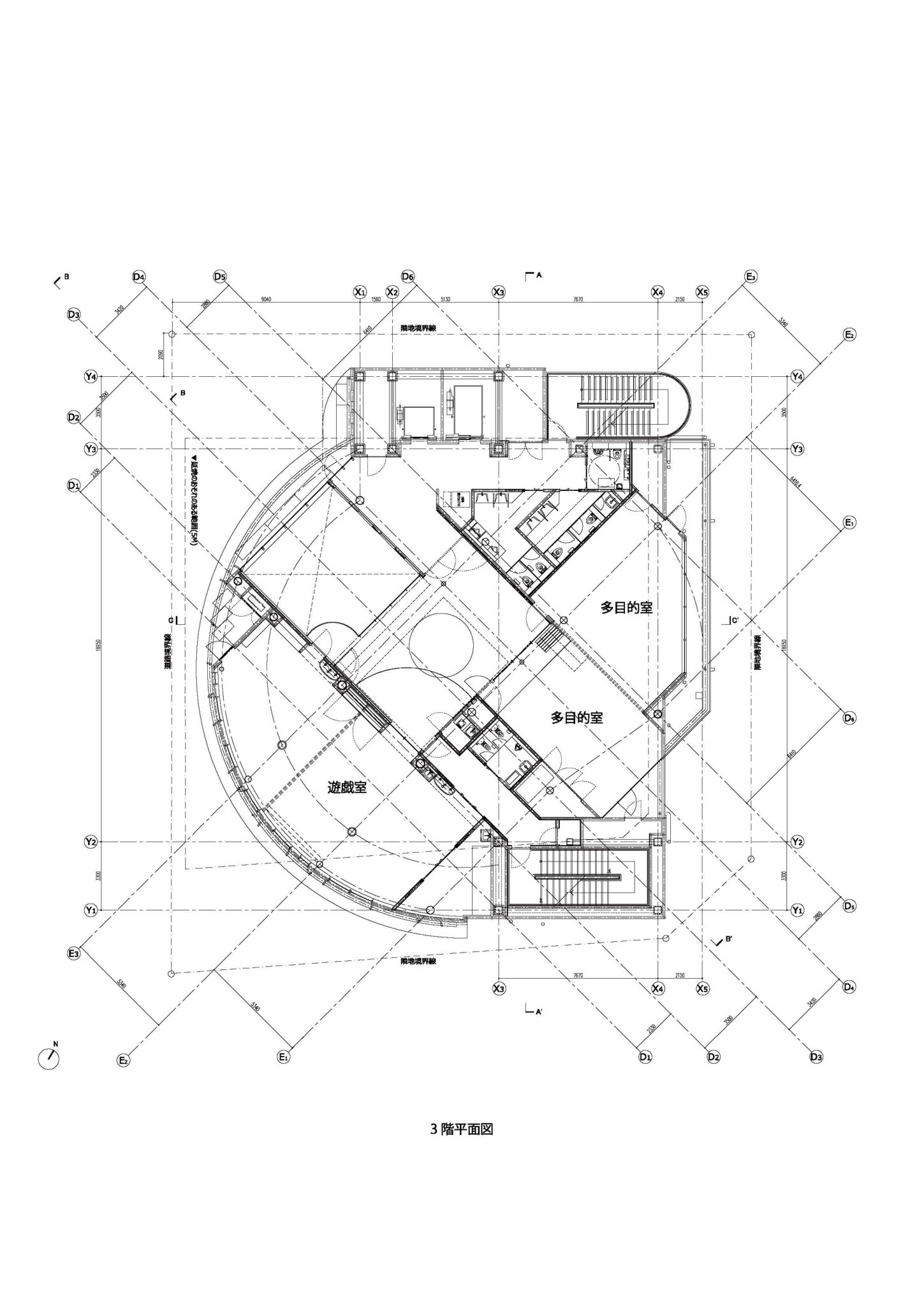
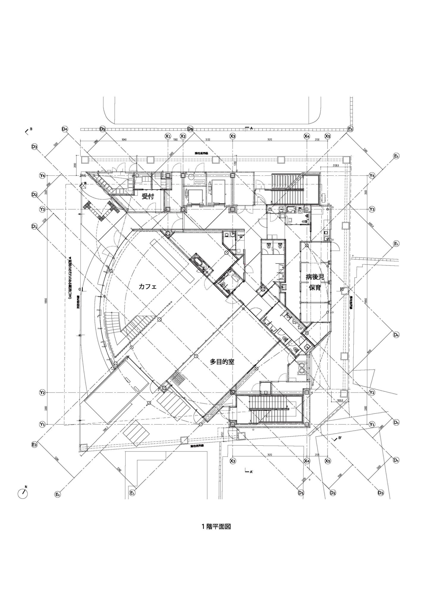
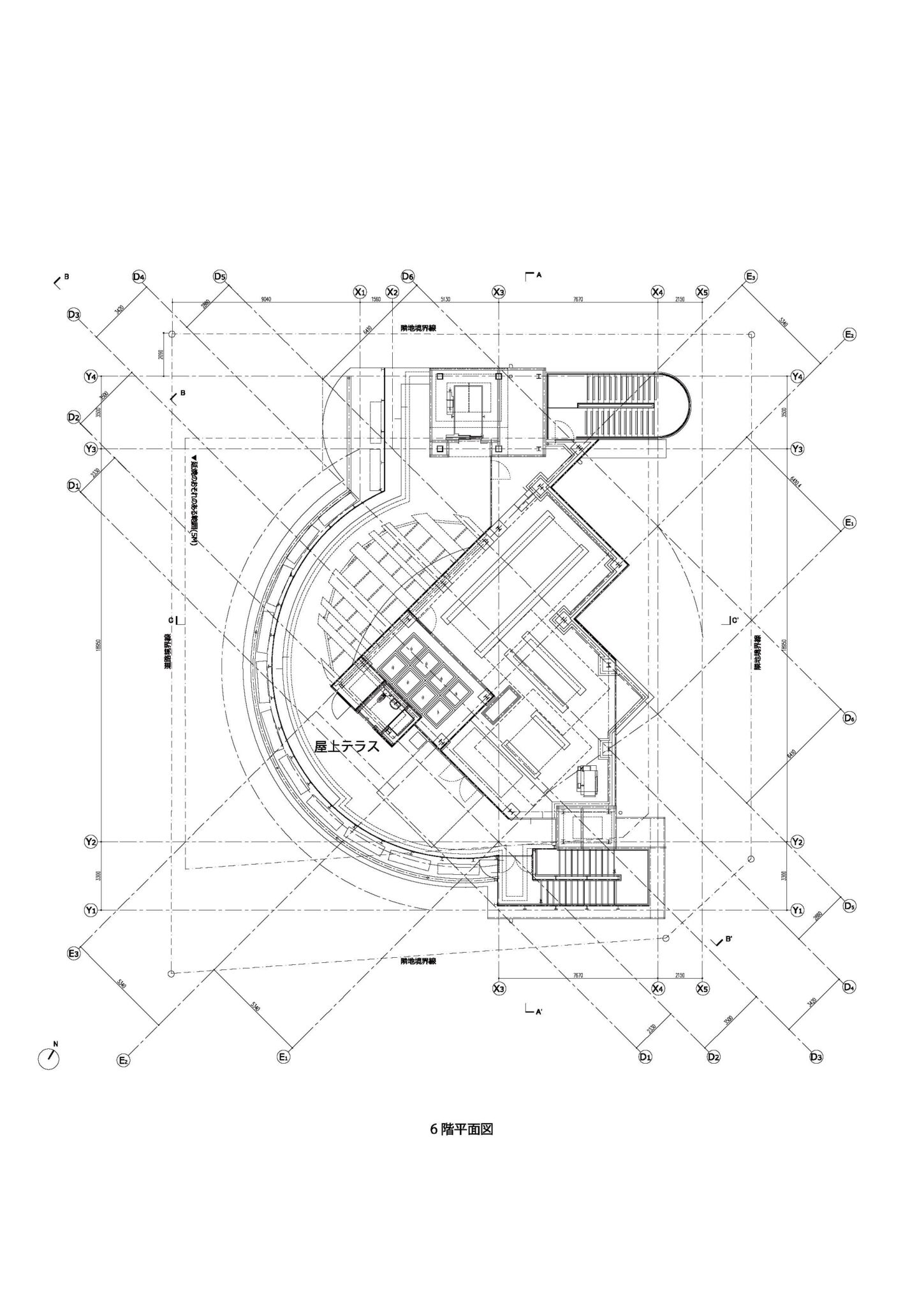
Shibuya SCC Sendagaya Community Center・Harajyuku Kindergarden
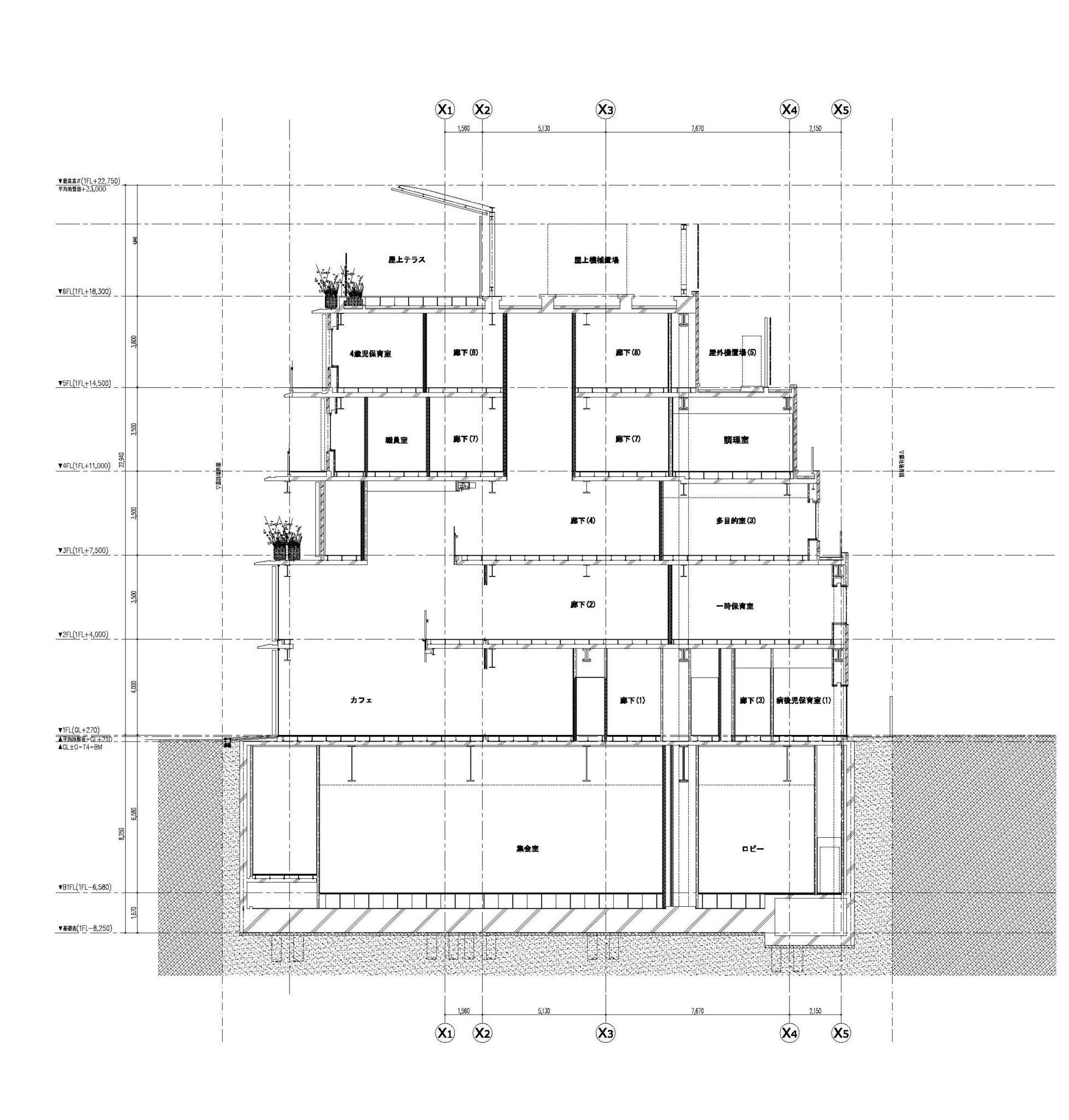
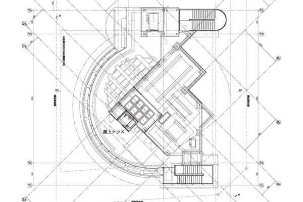
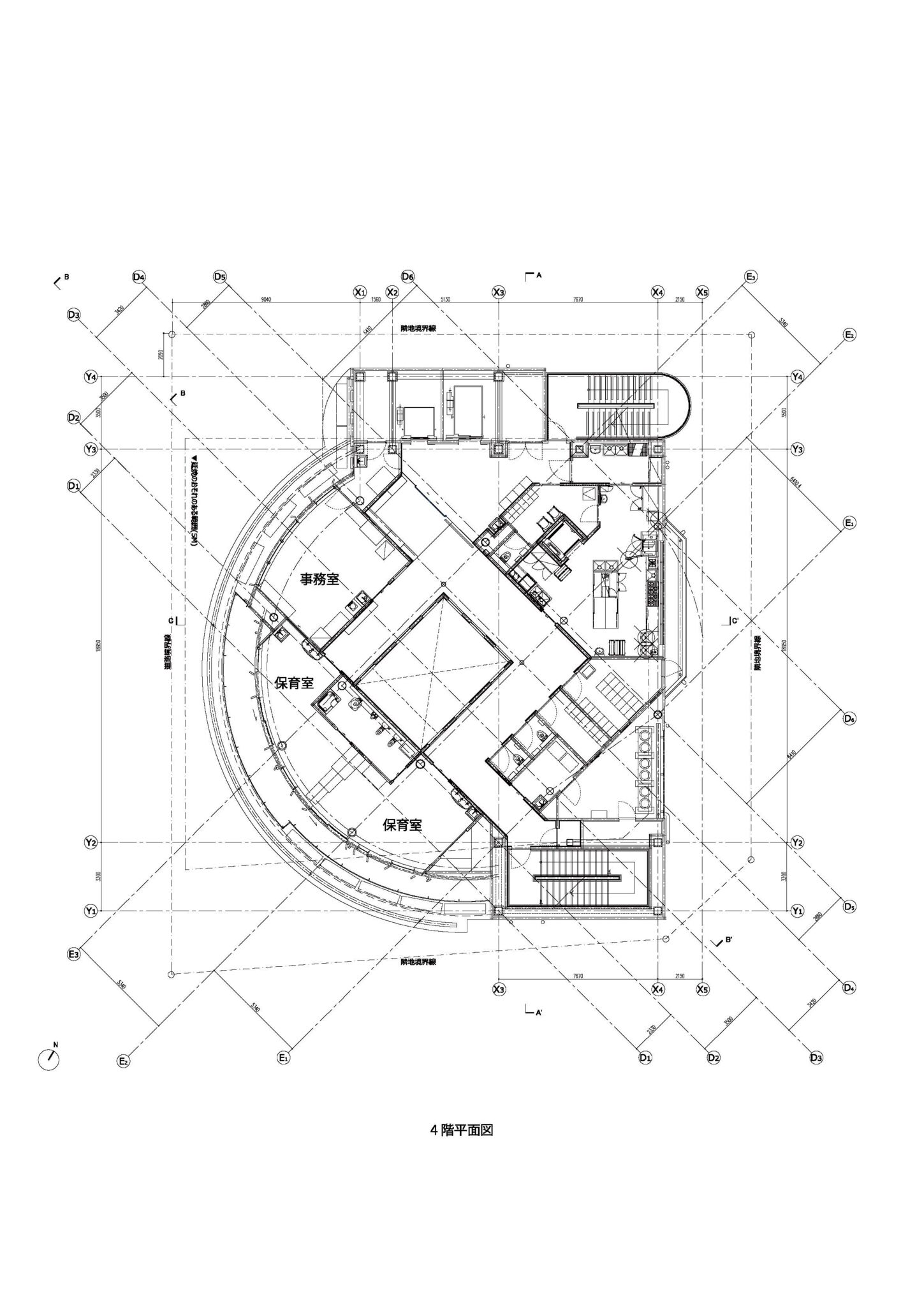
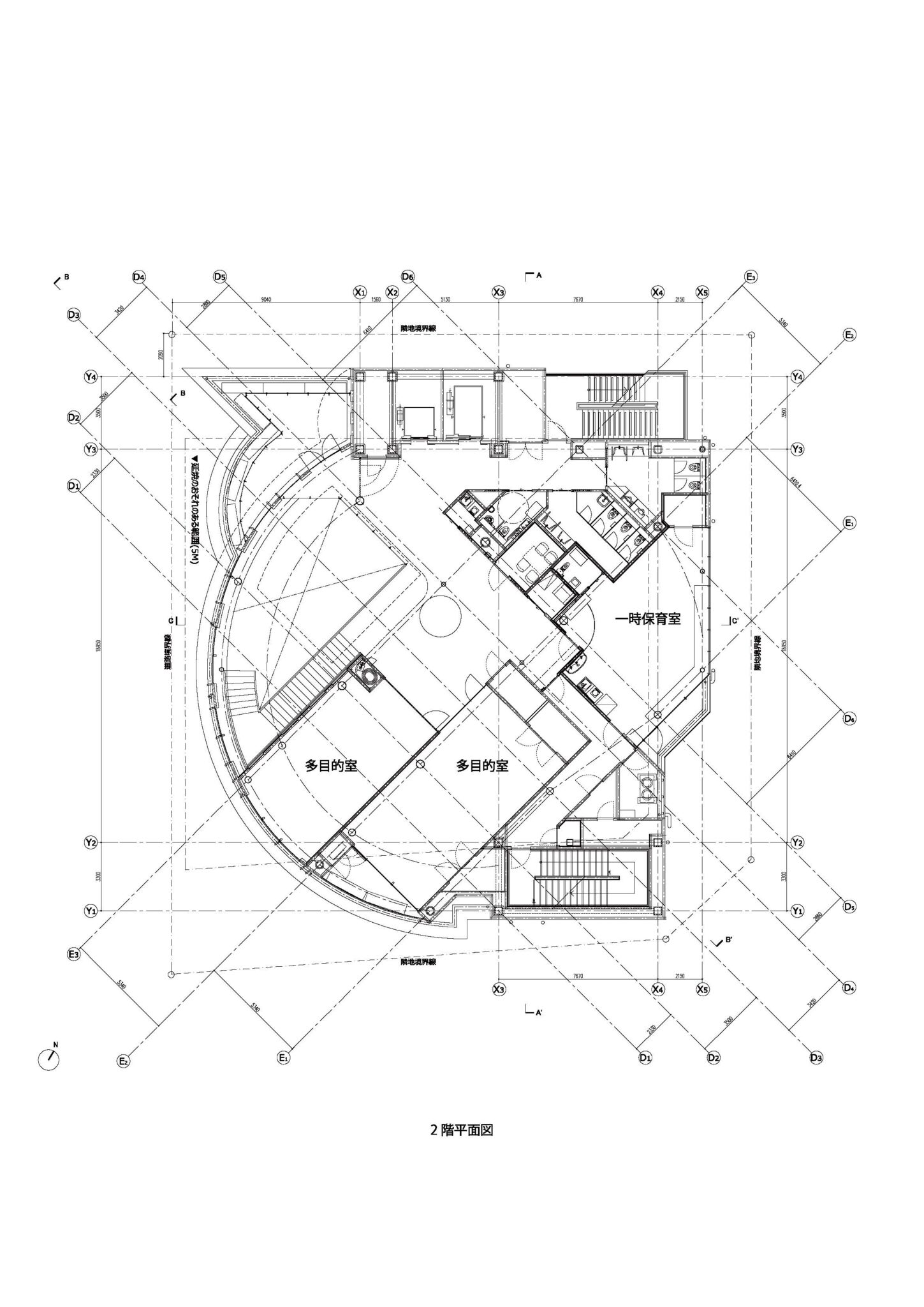
In the densely built-up area of Jingumae where workers and residences are intermingled, we designed a complex facility open to the public with a series of marble floors. The circular slabs create a generous gap between the building and the adjacent properties, allowing maximum light and wind to enter from the outside. The atrium, which runs from the first floor to the rooftop serves as a pathway for the light and wind to enter the building, additionally serving a communal connection between the mixed functions on separate floors. The interior and flooring is covered with a variety of circular panels which are used as windows, furniture, curtains, and signage, all of which vary in material and scale, maximizing the power of the circle to create a softer space. This is a proposal for a “malleable” public building that replaces the rigid and closed public building.




















