Tokai City Forest of Creation Exchange Center
Tokai City is an industrial city with a flourishing steel industry, and at the same time, it is a historical city with a float festival parading (dashi-matsuri) in the middle of the city since the Edo period. Inspired by this duality, we conceived of a building layout open to the city in several wings with a center street.
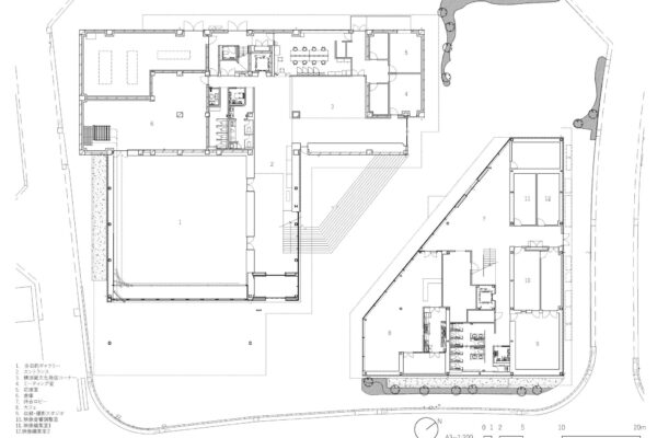
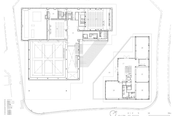
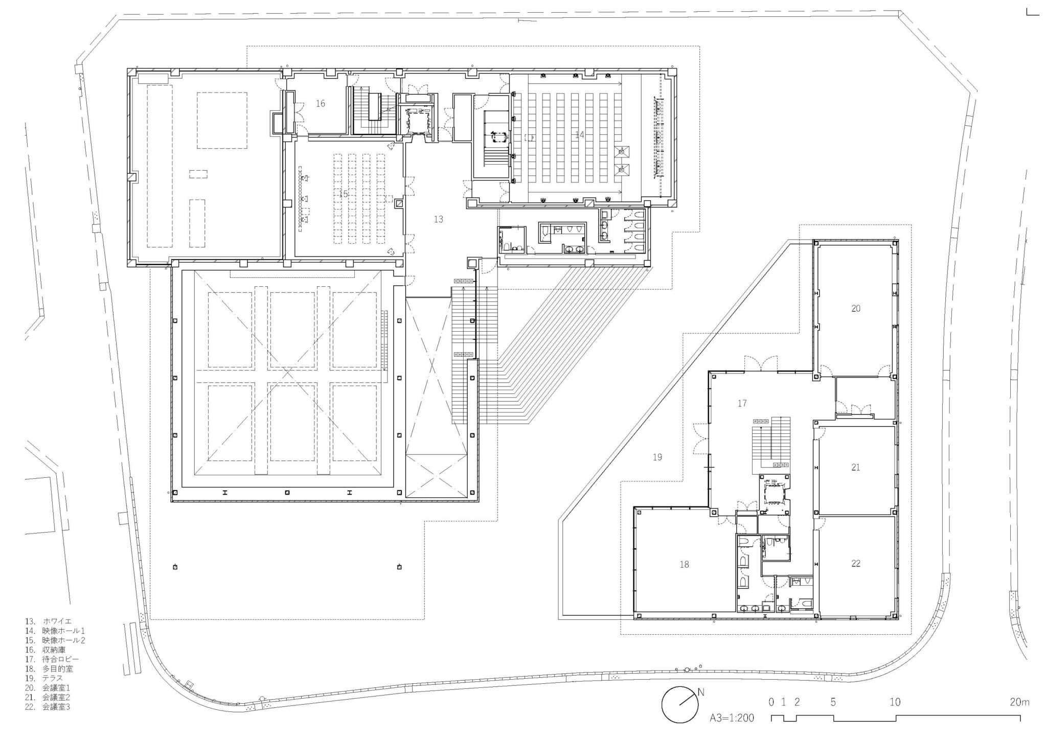
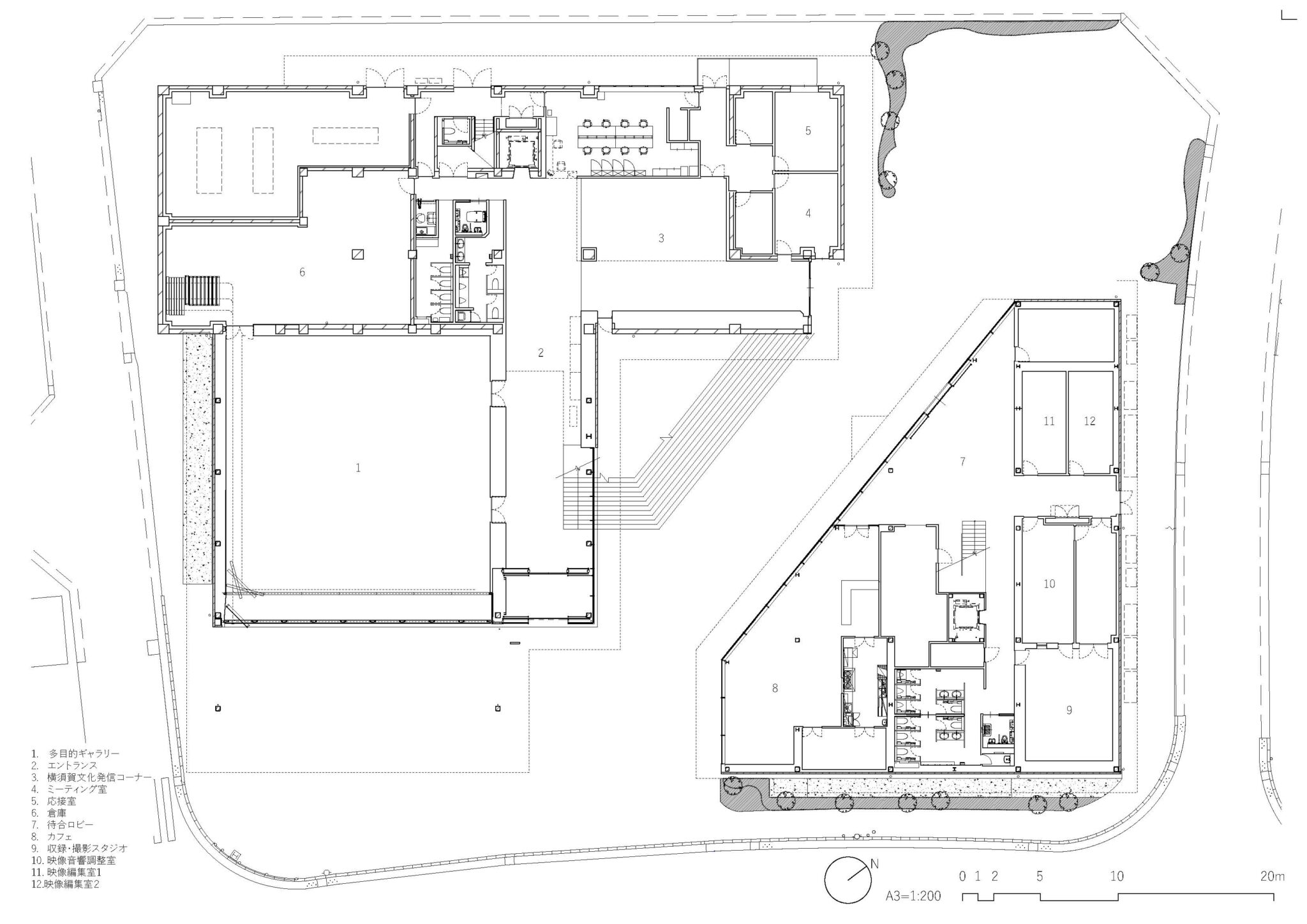
A pedestrian street, along which festival floats can pass on celebratory days, runs through the center of the site. Around this street, we arranged small volumes such as a theater hall, a recording and filming studio, a multipurpose gallery, and a café—creating a media and cultural exchange facility that is open to the community and resonates with its dynamism.
The motif of the curved karahafu roof which has a traditional, gently curved shape with a raised center and is a symbolic element of the festival floats, was reproduced with a steel frame to create a facility that seamlessly links the past and present, a characteristic of Tokai City. From the early stages of planning, we engaged in a series of dialogues with local residents and focused on the contemporary and inclusive content of visual media, aiming to create a new type of public facility in which everyone can participate and create together.
※reference: NEWS@KKAA website




















